• Авторизация


Без заголовка 16-11-2014 21:35 к комментариям - к полной версии - понравилось!

Это цитата сообщения НатаСеваса Оригинальное сообщение

Объемная открытка с платьем

Копилка идей: объемная открытка

Ярлыки: | на 21.5.12

http://scrapclubspb.blogspot.ru/2012/05/blog-post_21.html

Сегодня хочу поделиться конструкцией объемной открытки, которую можно использовать не только как открытку, но и например фото-рамку.
 
 
Автор:

За основу берем отрезок плотного картона 14х29,5 см и делаем разметку в соответствии с рисунком:

 
В первую очередь вырезаем ножом квадрат обозначенный синим цветом. Затем бигуем по линиям, обозначенным черным цветом. И после этого разрезаем оставшиеся диагонали, обозначенные красным. Сгибаем пробигованные швы:

 
Приступаем ко второй основной детали. Такой же, как взятый за основу, картон размером 11,7х11,7 см размечаем в соответствии с рисунком:

 
По черным линиям бигуем и сгибаем, по красным – надрезаем.  Смазываем клеем квадратики, обозначенные бежевым цветом, и склеиваем. Должно получиться подобие дна коробочки.

 
 
Вставляем эту коробочку в «лепестки» первой заготовки, с внутренней стороны:

 
Промазываем клеем «лепестки» и скрепляем с торцами коробочки с внешней стороны:

 
Получается такая заготовка для будущей открытки:

 
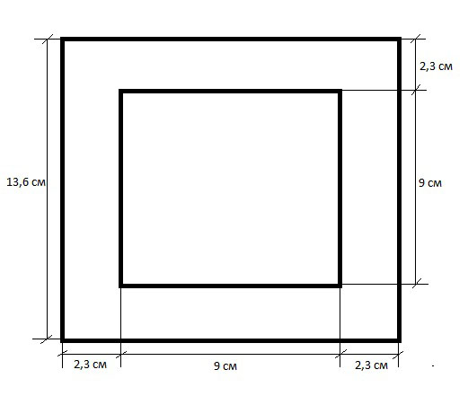
Дальше уже можно заняться украшением. Я выбрала нежный набор бумаги «5th avenue» от Melissa Frances, который размером 15х15 см и отлично подходит для открыток. Для оформления внешней стороны нам понадобится два листа. От одного из них, того что пойдет в углубление, отрезаем кусок размером 8,9х8,9 см. А другой лист бумаги обрезаем до 13,6х13,6 см  и делаем разметку:
 
Вырезаем аккуратно ножиком «окно», само «окно» не выкидываем – им можно украсить внутреннюю сторону углубления:

 
Получаем:

 
Дальше обе детали я «пошкрябала» ножницами и ту что идет в углубление – приклеила:

 
На последней фотографии видно что стыки коробочки и поверхности открытки вышли не очень аккуратно, поэтому я их закрыла дырокольным кружевом. Этого можно избежать если при склеивании двух основных частей открытки – дна коробочки и основы под открытку -  вставлять не в «лепестки»  коробочку , а наоборот – в коробочку «лепестки».

 
Сверху приклеиваем лист с «окошком» и дальше украшаем:

 
 Я украсила открытку самодельным платьицем из кружева, рамкой из чипборда с оттиском штампом  «От всего сердца», эмбоссингом белой пудрой со штампом «Завиток»,  дырокольной бабочкой и завитком из чипборда, который покрыла дистресс-кракелюром.

Теперь дело осталось за малым – закрыть все некрасивости углубления с внутренней стороны открытки. Для декора торцов нарезаем 4 полоски бумаги 1,4х8,9 см и еще у нас есть оставшийся отрезок от «окна»:

 
«Шкрябаем» все отрезки, приклеиваем и любуемся результатом!

 
Весь процесс создания открытки не отнимает много времени, так что не бойтесь сложностей и творите в удовольствие!
вверх^ к полной версии понравилось! в evernote


Вы сейчас не можете прокомментировать это сообщение.

Дневник Без заголовка | Марина_Углова - Дневник Марина_Углова | Лента друзей Марина_Углова / Полная версия Добавить в друзья Страницы: раньше»