• Авторизация


Трехцветный короткий жакет 11-01-2019 22:09 к комментариям - к полной версии - понравилось!

Это цитата сообщения kuzya123452 Оригинальное сообщение

http://verena.ru/vyazanie-spicami/zhaket-s-uzorom-v-kletku-5206/ [показать]

 

РАЗМЕРЫ

36/38 (40/42)

ВАМ ПОТРЕБУЕТСЯ

Пряжа (60% хлопка, 25% шерсти альпака, 15% шелка; 115 м/50 г) — 300 (350) г серой, 150 (200) г серебристо-серой и 100 (150) г сизо-голубой; спицы №5,5; круговые спицы №5 длиной 120 см; декоративная металлическая пуговица длиной 3 см.

УЗОРЫ И СХЕМЫ


УЗОР ИЗ СНЯТЫХ ПЕТЕЛЬ А И В

Вязать по схемам А и В. В ширину повторять раппорт из 6 п. между кромочными. В высоту повторять с 1-го по 6-й ряд.

[показать]

ПОСЛЕДОВАТЕЛЬНОСТЬ УЗОРОВ И ПОЛОС

* 24 р. узора А попеременно 2 р. серых и 2 р. сизо-голубых, 
6 р. узора А серой нитью, 
6 р. узора В серой нитью, 
24 р. узора В попеременно 2 р. серебристо-серых и 2 р. серых, 
6 р. узора В серой нитью, 
6 р. узора А серой нитью, 
24 р. узора А попеременно 
** 2 р. серых, 2 р. сизо-голубых, 
2 р. серых, 
2 р. серебристо-серых, 
от ** повторить 3 раза, 
6 р. узора А серой нитью, 
6 р. узора В серой нитью, 
24 р. узора В попеременно 2 р. серебристо-серых и 2 р.серых, 
6 р. узора В серой нитью, 
6 р. узора А серой нитью = 144 р., от * повторять.

ПЛОТНОСТЬ ВЯЗАНИЯ

21,5 п. х 48 р. = 10 х 10 см, связано узорами из снятых петель в указанной последовательности спицами №5,5.

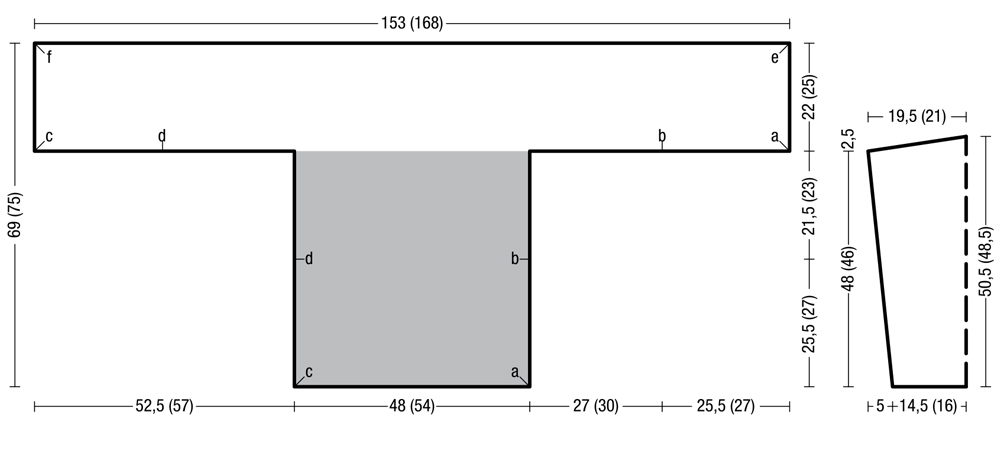
ВЫКРОЙКА

[показать]

 

ВЫПОЛНЕНИЕ РАБОТЫ


СПИНКА И ПОЛОЧКИ

Для спинки серой нитью набрать 104 (116) п. и провязать 1 изн. ряд изнаночными (этот ряд в дальнейших расчетах не учитывать). 

Затем между кромочными вязать узорами из снятых петель полосы в указанной последовательности. 

Через 48 (51) см = 230 (244) р. от наборного ряда дополнительно набрать с обеих сторон для полочек по 84 (90) п. = 272 (296) п. и продолжить вязание на круговых спицах. На прибавленных петлях вязать узорами из снятых петель. 

Через 22 (25) см = 106 (120) р. от начала полочек работу временно оставить.

РУКАВА

Серой нитью набрать 62 (68) п. и провязать 1 изн. ряд изнаночными (этот ряд в дальнейших расчетах не учитывать). 

Затем между кромочными вязать узорами из снятых петель полосы в указанной последовательности. 

Для скосов в 19-м р. от наборного ряда прибавить с обеих сторон сначала 1 раз по 1 п., затем в каждом 20 (18-м) р. еще 10 раз по 1 п. и включить эти петли в узоры из снятых петель = 84 (90) п. 

Через 48 (46) см = 230 (220) р. от наборного ряда закрыть с обеих сторон для оката 1 раз по 6 (8) п., затем в каждом 2-м р. еще 5 раз по 6 п. 

Через 2,5 см = 12 р. от начала формирования оката закрыть оставшиеся 12 (14) петель.

СБОРКА

Для планок и шалевого воротника набрать на круговые спицы серой нитью по краю от а до е (= нижний край правой полочки) 40 (45) п., 272 (296) отложенных петель от е до f провязать лицевыми и от f до с (= нижний край левой полочки) набрать еще 40 (45) п. = 352 (386) п. На всех петлях вязать 2 р. лицевой гладью, при этом во 2-м р. на уголках е и f перед и после угловой петли из протяжек вывязать по 1 лиц. скрещенной петле. В следующем лиц. ряду первые и последние 40 (45) п. временно оставить и только на средних 272 (296) п. провязать следующие 2 р., при этом на правой полочке через 44 (48) п. = 20 (22) см от нижнего края закрыть для отверстия для пуговицы в изн. ряду 3 п. и эти петли вновь набрать (изн. ряд довязать до конца). В следующем лиц. ряду все петли закрыть. 

Полочки сложить со спинкой изнаночными сторонами, совместив метки от а до d. Между метками а и b, с и d выполнить боковые швы. Вшить рукава (проймы спинки немного выше пойм полочек). Выполнить швы рукавов. Пришить пуговицу. 

Фото: журнал «Verena» №5/2016
вверх^ к полной версии понравилось! в evernote


Вы сейчас не можете прокомментировать это сообщение.

Дневник Трехцветный короткий жакет | zinzilya - Дневник zinzilya | Лента друзей zinzilya / Полная версия Добавить в друзья Страницы: раньше»