• Авторизация


Квартира площадью 31 кв.метр в Гонконге 12-03-2015 16:15 к комментариям - к полной версии - понравилось!


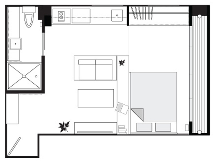
Квартира площадью 31 кв.метр в Гонконге


Из-за дефицита свободной площади цены на недвижимость в Гонконге очень высокие, поэтому собственные квартиры здесь могут позволить себе только очень состоятельные люди.

[показать]

Многие всю жизнь арендуют жилплощадь и даже не мечтают ее купить.

Поэтому, малогабаритное жилье очень популярно в этом регионе, а для его обустройства обязательно обращаются к дизайнерам. Так над проектом и его реализацией работало гонконгское бюро urban: design & build, которое превратило 31-метровую площадь в просторное жилье с несколькими функциональными зонами.  

На первый взгляд, кажется, что белый интерьер создан для женщины, но нет, владелец квартиры мужчина. Прямоугольные лаконичные формы, минимальное количество декора и деталей – по-мужски сдержанно. При этом в этой квартире есть все необходимое для жизни: большая двуспальная кровать, вместительная кухня, гостиная, гардероб, санузел. Зонирование сделано с помощью мебели и небольшой ступеньки между кухней и спальней. Кровать отгорожена невысоким стеллажом-полкой, чтобы не мешать естественному свету, проникать в каждый уголок квартиры. Кухонная мебель отделена от платяного шкафа небольшим простенком, чтобы зрительно разделить функциональные зоны. Чтобы не закрывать окно, которое находится прямо в шкафу, на уровне форточки находится полка на кронштейнах, которая визуально практически не перекрывает свет.

[показать] [показать] [показать] [показать] [показать] [показать] [показать] [показать] [показать] [показать]

 

 

http://domik.ua/novosti/kvartira-ploshhadyu-31-kvmetr-v-gonkonge-n236373.html

вверх^ к полной версии понравилось! в evernote
Комментарии (1):


Комментарии (1): вверх^

Вы сейчас не можете прокомментировать это сообщение.

Дневник Квартира площадью 31 кв.метр в Гонконге | Женское - Дневник Женское | Лента друзей Женское / Полная версия Добавить в друзья Страницы: раньше»